Je n’avais pas encore posté le plan alors le voici, il a changé
plusieurs fois mais là on est presque au définitif (à quelques cms
près lol).
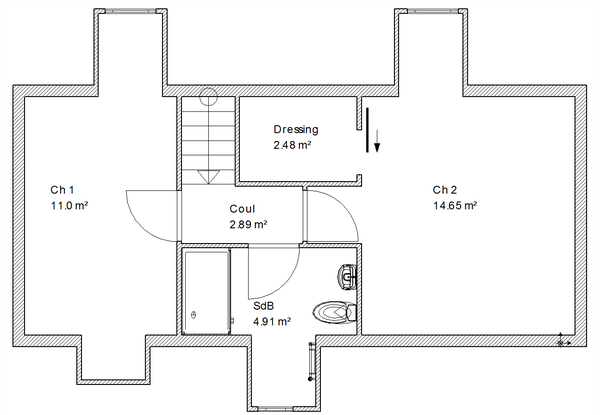
L’escalier arrive sur un palier de 3 portes :
- Une petite chambre avec un petit placard sous pente (en bas à
gauche) - Une grande chambre avec un dressing (qui me permettra aussi de
planquer l’installation électrique) - Une petite salle de bain avec douche, lavabo et WC
suspendus
Merci de nous suivre et de nous liker :


Alors là bravo pour la chambre avec le dressing, j’adore ! Mon rêve !
J’aime beaucoup l’aménagement, et surtout cette grande chambre avec dressing… que demander de plus !
Bises, et bonne journée
Super et tout et prévu dressing dans la chambre
ah super! je note l’idée « trappe de visite faite maison » !
merci pour le partage!